the unique house can be lived in

The property exhibits generous room sizes

The property exhibits large room sizes

There are 4 extremely large rooms with two long walls (7m x 8m - 23' x 26') connected by an even longer curved wall. There are 16 further principal rooms (mostly approx 4.2m x 4.2m). In addition there are staircases, hall, toilet etc. Side access 2m wide (not wide enough for a vehicle) leads down to a narrow (2.8m wide, 4m at widest point) but long (24.5m) rear garden/access providing access to the lower two levels.

Construction is stone (half a metre thick) with slate roof. Ceiling heights are generous. Many of the windows have been replaced with brown aluminium double glazing, others are wooden sash windows. Some rooms have been decorated recently, others may have not been touched since victorian times. Some interesting features allure to the building's railway heritage; railway carriage roof members have been used as joists above the main stairs and bull nosed railway lines are used as lintels.

The property is distinctive with lots of room and many of them.

There is ample road parking.

The property is prominently situated on a corner leading into the town from the north, making it a landmark property. The property has both a curved double frontage with large front door and a straight double frontage with a 'normal' front door. Being close to the station, it is easy to find.

Large entrance hall and main stairs need renovation.

The property is mostly in poor decorative order. A refurbishing project is underway; some aspects have been deliberately left until the future purpose of the building is decided.

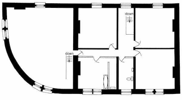
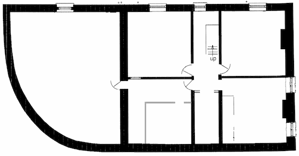
Plans showing existing structure

The following plans are approximate, and for guidance only.

Level 4 - Top

Landmark property available for conversion.

Level 3 - Street Level (2 front doors with possibility for 2 more )

Unique property suitable for railway enthusiast train spotting.

Level 2 - Mezzanine Level (external door to side)

Outstanding scenery can be seen from the massive property.

Level 1 - Ground Level (three exterior doors)

Ground floor opportunity with development potential,

Cross Section

lots of potential