house has large room size for studio
Large room on top floor has windows in three directions.

Planning Permission

planning permission David Garratt, Housing Enabling & Development Officer, Shropshire Council, commenting on a conversion scheme for the Roundhouse.

The property would be suitable for a number of purposes, separately or jointly, some are suggested below.

Residential Use

planning consent David Garratt, Housing Enabling & Development Officer, Shropshire Council.

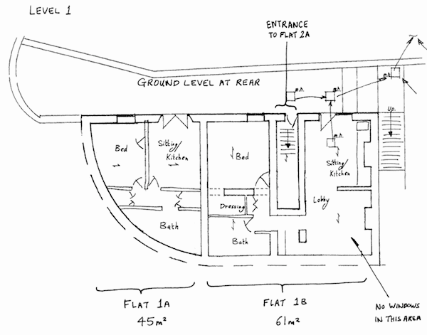
The local authority is keen to see the property developed. If the Roundhouse were developed into multiple dwellings, eg 3 houses or 11 flats, the local authority are agreeable to waiving their normal requirement for a contribution to their affordable housing scheme. Conceptual plans for conversion into ten 1-bedroom flats plus one 2-bedroom flat are shown at the bottom of this page. The property is sufficiently large, and habitable, that it can be lived in while undertaking conversion work.

Tourist and Walker's Accommodation

many large bedrooms One of the existing bedrooms.

Knighton is a tourist town, especially for walkers. Although there is a hotel and small bed & breakfast establishments in the town, there may be further demand during the walking season (spring, summer and autumn), and especially for Knighton's annual carnival and the Town Crier's festival, Christmas, and all year for weddings, christenings, and funerals.

What the town really lacks is a bunk house for walkers and those participating in active country holidays (eg horse riding). Many walkers want low cost accommodation where no one minds them wearing walking boots and going up stairs with a ruck sack on their back. They appreciate a quantity of tea to fill their flasks each morning. The Roundhouse, with its ample space would lend itself to this market, and since economy is more important than facilities & decor to these customers, conversion and renovation could be achieved cost-effectively and progress in annual increments.

The proximity to the railway station is a bonus for this market since people tend to walk the national trails in sections, and since walking back to collect a car is impractical, they like to be able to start or end a section of walk where there is a railway station. Knighton is a hub for walkers as it is at the midway point along Offas Dyke Trail and at the beginning of Glyndwr's Way. For this market the property could offer private double rooms, family rooms, and even a couple of youth-hostel style dormitories.

There is a tourism group in Knighton subscribed to by those in the local tourist sector. The group promotes tourism and assists members (eg if one accommodation venue is full, it recommends other group members rather than turning custom away). The group also provides useful facilities such as marquee rental.

Self employed craftsman (or tradesperson)

Roundhouse workshop Existing workshop on level 2

Knighton already supports craftsmen, eg a thriving upholsterer who operates from a shop in Church Street. The Roundhouse, with its landmark frontage and built-in recess for a large prominent sign lends itself to commercial use. The double door leads directly into one of the massive rooms that could easily be a craft-person's workshop and/or showroom. If extra space is required, the workshop could be on the floor above or below, leaving the full 7m x 8m (23' x 26') max showroom. With four such large rooms, storage should not be a problem, and would still leave 16 principal rooms (4m+ x 4m+) to provide ample living accommodation. There is ample parking outside for vehicles including a van.

Offices & flats

Business signage on the Roundhouse. Recess for sign on round frontage provides large sign area that fits nicely with the building's architecture. The building was literally made for a commercial sign!

The property can easily be vertically divided into the double fronted 'round part' and the double fronted 'square part'. The square part could form a large house or be subdivided into four large flats, one on each level (or more smaller flats, plus one in the roof space). The round part can be converted into offices on up to four floors including meeting room(s), toilets, and kitchenette.

Plans for conversion into offices & flats are shown at the bottom of this page.

Internet trading e-business

Because of the fast internet connection at the property, and plenty of space, it would make good premises for e-trading and living 'Live-Work' (the internet is currently being further upgraded with fibre). The very large room at street level could be used for goods inwards, packing, and despatch, while the large rooms above and below could be used for storage of stock. Thus it could join the local e-business presence in Knighton.

Massive Family House

It has even been suggested that the property could be turned into a mansion town house, with swimming pool in the largest room in the basement. It would be possible to have a balcony on the floor above overlooking the pool.

stable could become swimming pool jacuzzi steam room Former stable in basement could become a swimming pool, perhaps 6m x 6m, with additional outside patio.

Leisure Facilities or Health Spa / beauty therapy / beauty farm

The whole of the basement area could be converted into leisure facilities including swimming pool, steam room / Turkish bath, sauna, jacuzzi, showers, and changing area. If massage and other therapy rooms were provided on other floors, the building could be used as a health farm or beauty spa and still provide plenty of accommodation for the owners. Therapy could be combined with walking, and eating locally produced quality food. Nearby Ludlow is a centre for culinary delights from its local farmers market, butchers who also stock game, Michelin-starred restaurants, and was the first Cittaslow "slow food" town in England (the Cittaslow movement began in Italy and aims to reduce life's stress). Just outside Knighton, in either direction, one finds a superb foodie restaurant: The Waterdine to the West and the Milebrook to the East, both with rooms.

Planning Permission

All of the above possibilities are subject to the normal planning permission and other consents; the planning authority is Shropshire Council.

Plans showing possible layout of 11 flats

lots of potential landmark property railway enthusiast outstanding scenery scope for development

Cross Section

lots of potential

Plans showing possible layout of offices and 4 large flats

Level 4

landmark property

Level 3

railway enthusiast

Level 2

outstanding scenery

Level 1

development